Overschiese Kleiweg 795 en 797 te Rotterdam
Prijs: UITVERKOCHT
Verkoop gestart. ( per 17-11-2025 ) VERKOCHT
2 NIEUW TE BOUWEN WONINGEN ( 2 onder een kap )
Op uw eigen schiereiland aan de rand van Overschie, op loopafstand van Park 16-hoven, worden deze 2 nieuwbouwwoningen gebouwd als 2 onder 1 kap, beiden op een royaal perceel en met een eigen brug. De getoonde garage(s) op de impressie kan optioneel als meerwerk worden gebouwd.
De woningen beschikken over een A+++ label, zijn gasloos en beschikken standaard per woning over 9 zonnepanelen.
De riante percelen zijn per perceel ca. 473m ² en 515m ².
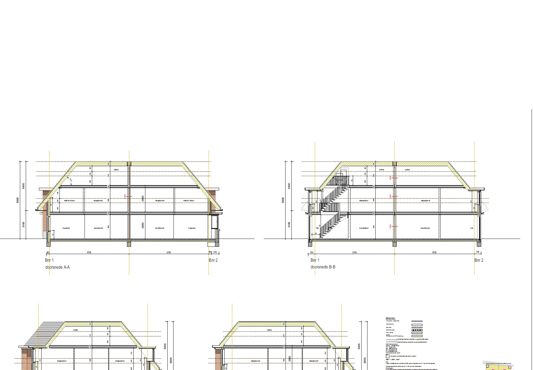
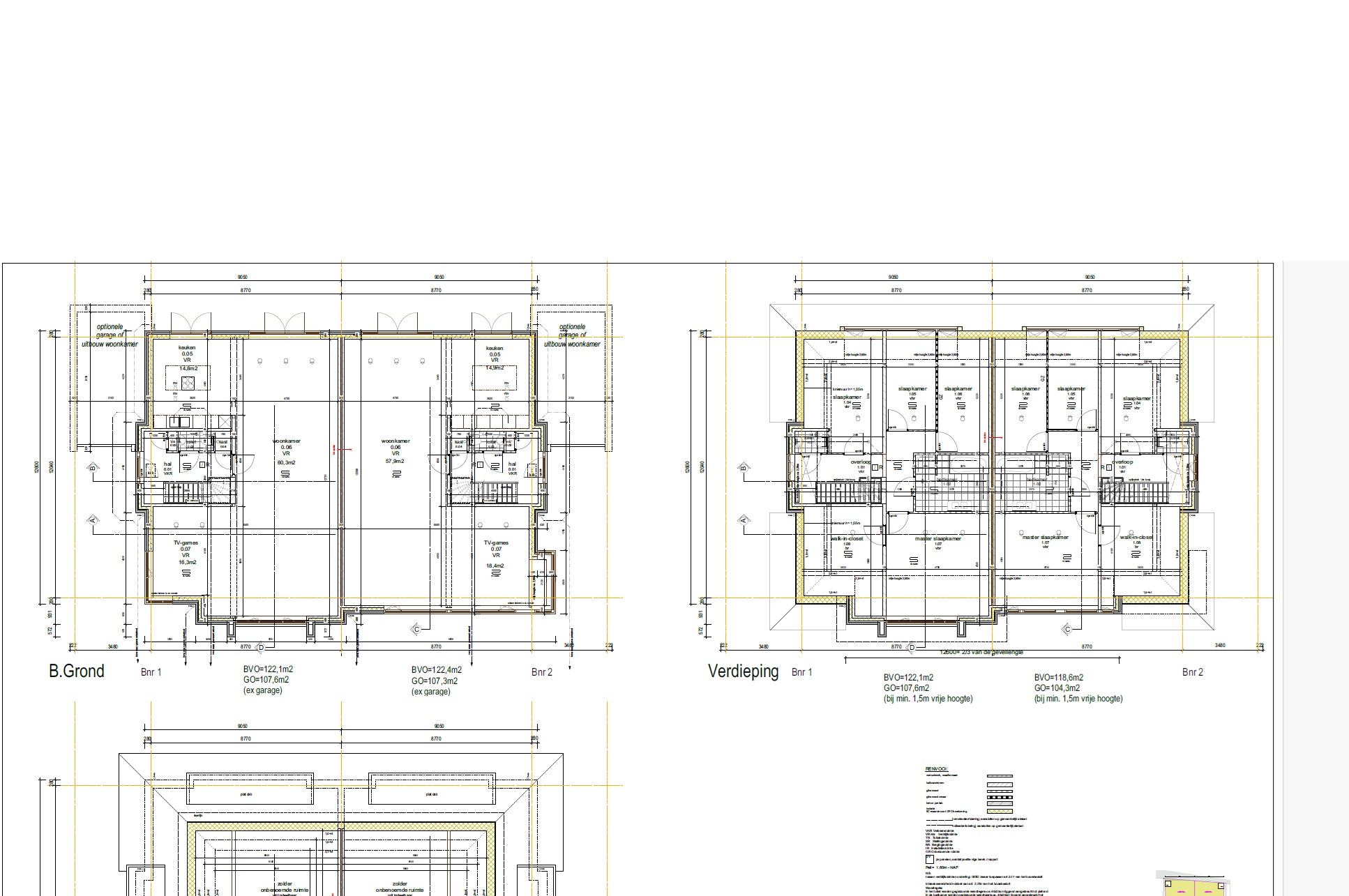
De woningoppervlakten zijn ca. 259m ² en 255m ² per woning.
De woningen zijn gelegen in een rustige wijk nabij de historische dorpskern. Het is een kindvriendelijke buurt met relatief veel gezinnen. In Overschie woon je rustig nabij het groene Zestienhoven Park of de Ackerdijkse Plassen en toch centraal in Rotterdam met alle voorzieningen binnen handbereik, waardoor je een ideale combinatie hebt tussen gezelligheid en de natuur. In de directe omgeving zijn winkels, scholen, openbaar vervoer en verschillende gezellige restaurants op loopafstand. Uitvalswegen zoals A13, A20 en Rotterdam-The Hague airport zijn gemakkelijk en snel toegankelijk. Door de ideale ligging van deze woningen bevind je je binnen no time in het bruisende stadcentrum van Rotterdam!
Deze aanmelding is met grote zorgvuldigheid samengesteld, er kunnen geen rechten worden ontleend aan teksten, berekeningen, aanbiedingen evenals aan afgebeelde illustraties en artists-impressions, deze zijn uitsluitend bedoeld als voorbeeld en daardoor niet bindend voor het eindresultaat. Alle informatie, ook prijzen en voorwaarden, kunnen aan verandering onderhevig zijn.
Type
-
Bouwnummer 1
-
Bouwnummer 2









